Type: Lejligheder - Byhuse - Areal: 720 m² - Status: Afsluttet - Placering: Thoravej 20, København - Bygherre: Privat bygherre
Arkitektrådgivning: Skitseprojekt, myndighedsprojekt og hovedprojekt
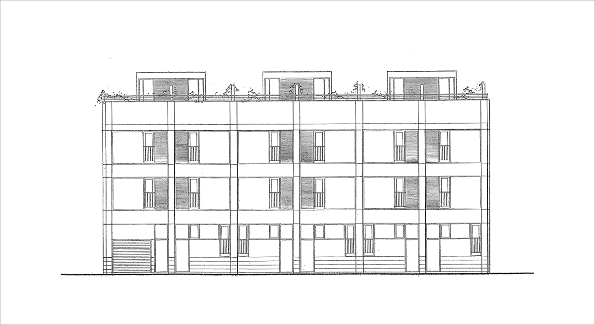
Huset på Thoravej 20 består af 6 lejligheder på mellem 106-120 m². Lejlighederne er opført som moderne byhuse i 3½ etager med egen tagterrasse. Under lejlighederne er der fælles parkeringskælder på 303 m². Bygningen stod klar til indflytning i 2017.
Thoravej 20_Isometri
Isometri af bebyggelsen
Thoravej 20_Satellitbillede
Satellitbillede af Thoravej 20
Thoravej 20_Rendering af gadefacade
Rendering af gadefacade
Thoravej 20_Rendering af havefacade
Rendering af havefacade
Thoravej 20_Skitse af havefacade
Skitse af havefacade
Thoravej 20_Skitse af gavlfacade og tværsnit
Skitse af gavlfacade og tværsnit
Skitse af gadefacade